Bauwerk
Head offices and warehouse Farmadent
Anton Lešnik - Maribor (SLO) - 1995
19. März 2006 - Architekturarchiv Slowenien
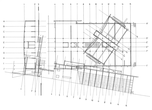
Located on the outskirts of Maribor, the building is a wholesale warehouse for medicines. It is divided into an administrative part and a warehouse, linked by a covered courtyard for handling products. The main facade of the administrative part is slightly curved, so as to add to the dramatic perspective one perceives when accessing the building from the side. The materials and technology are used intelligently: the assembly facade panels also serve as heating bodies, while on the lateral facades the glass panes are used as facade panels, to which further structure is added by means of partially visible thermal insulation. By assuming more complex functions, individual elements remain very pure formally, giving the building a touch of elegance.
Für den Beitrag verantwortlich: Architekturarchiv Slowenien
Ansprechpartner:in für diese Seite: nextroom
Akteure
ArchitekturBauherrschaft
Farmadent d.o.o.
Tragwerksplanung
Fotografie








