Bauwerk
Opel Commercial and Service Centre
Milena Todorić Toplišek - Kranj (SLO) - 2001
26. Februar 2006 - Architekturarchiv Slowenien
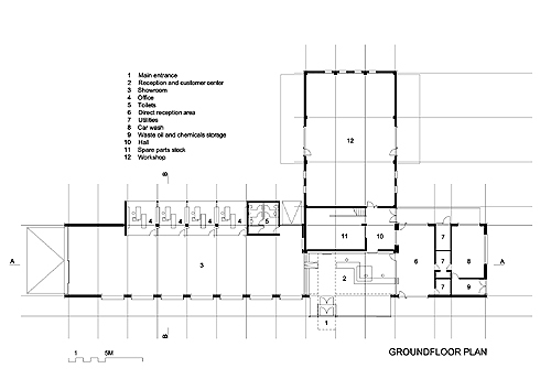
The architect upgraded the existing service workshop, and transformed it into a service-commercial showroom. The new building of the showroom, which also hosts the common and office rooms, is perpendicular to the main street and thus separates the showroom from the service workshop. The customer does not enter directly from the main road, but from the side, thus having to pass the commercial display panel on the pavement, and continue along the showroom windows to the entrance. The use of materials and colours corresponds to the corporate image of Opel. Apart from an elegance appropriate to the cars sold in the premises, the architecture also needed to adapt to the fastest possible low-cost realisation - a demand typical of contemporary business. 
Für den Beitrag verantwortlich: Architekturarchiv Slowenien
Ansprechpartner:in für diese Seite: nextroom
Akteure
ArchitekturBauherrschaft
Avtotehna vis d.o.o., pe Kranj
Fotografie










