Atelier Brandstötter Architektur
Atelier Brandstötter Architektur ist ein 2023 gegründetes Architekturbüro mit Sitz in Wien, geleitet von Jakob Brandstötter.
Wien (A)
Studio Calas und die Atelier Brandstötter Architektur ZT GmbH konnten den geladenen, einstufigen Realisierungswettbewerb im Unterschwellenbereich für sich entscheiden.
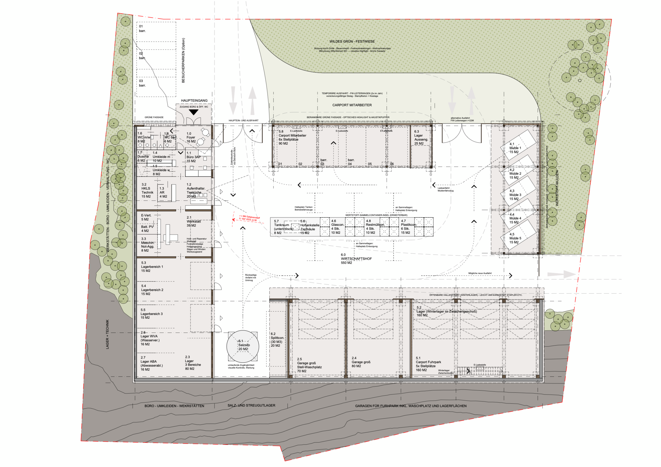
Der Bau- und Wirtschaftshof der Gemeinde Maria Wörth in Reifnitz ist in die Jahre gekommen und nicht mehr in der Lage, die Anforderungen an ein zeitgemäßes Funktionszentrum dieser Art zu erfüllen. Derzeit findet aufgrund des schlechten baulichen Zustandes nur noch eingeschränkter Betrieb statt. Daher soll der Bauhof am bestehenden Standort neu errichtet werden. Die zentrale Erreichbarkeit und die Möglichkeit, die Hanglage zu nutzen und einen Teil des Bauvolumens unter die Erde zu bringen, hat zur Festlegung geführt, im hinteren Bereich des Webernig-Areals ein neues Infrastrukturgebäude für die technischen Dienste der Gemeinde zu errichten.
Das Preisgericht setzte sich aus Harald Kloiber, Sabine Polesnig, Markus Perdacher, Robert Schmidhofer, Stefan Kompein und Philipp Urabl (Ersatz: Michael Lammer, Barbara Harz, Matthias Trattning, Philipp Glanzer, Ulrike Wallenko und Erich Fercher) zusammen.
Die Publikation von Wettbewerbserfolgen und deren Verlinkung mit der Wettbewerbsplattform architekturwettbewerb.at erfolgt im Rahmen der Kooperation mit der Bundeskammer der ZiviltechnikerInnen Österreichs.