Bauwerk
Residence of the Ambassador of the Netherlands to Slovenia
Bevk Perović arhitekti - Ljubljana (SLO) - 2003
Residence of the Ambassador of the Nederlands to Slovenia
12. Februar 2006 - Architekturarchiv Slowenien
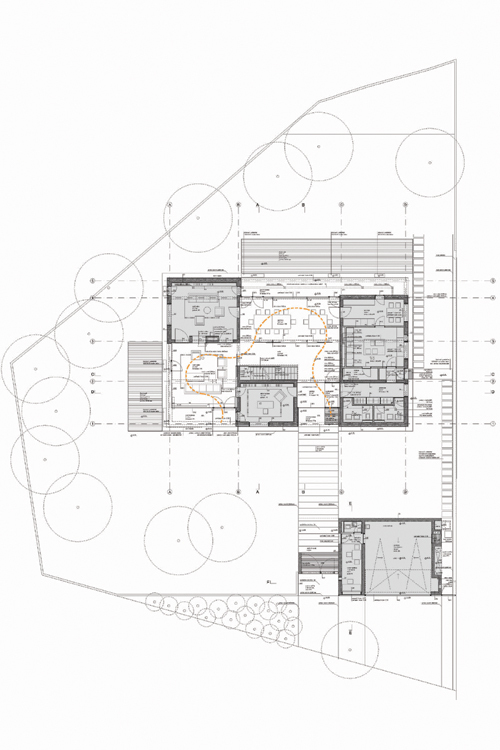
The concept of the building is derived from the specific needs of an ambassador. The ground floor is intended for receptions and office work, while all the private rooms are located on the first floor. The different contents are reflected by the facade where the ground floor opens onto the garden, while the first floor, clad with wood, is more introverted. The ground floor hosts a study, a living room, a lounge and a dining room, all of which are linked into one surface by means of doors, reminding us of the Dutch tradition. The upper wooden volume is uneven in height. Together with balcony recessions and terraces the final effect is that of dynamic volumes, reminiscent of Neo-plasticism. 
Für den Beitrag verantwortlich: Architekturarchiv Slowenien
Ansprechpartner:in für diese Seite: nextroom
Akteure
ArchitekturBauherrschaft
Kingdom Netherlands
Tragwerksplanung










