Bauwerk
Weekend house
Arhe, ATELIERarhitekti, Jurij Kobe - Ankaran (SLO) - 2004
Weekend house (Slovenia)
18. Februar 2007 - Architekturarchiv Slowenien
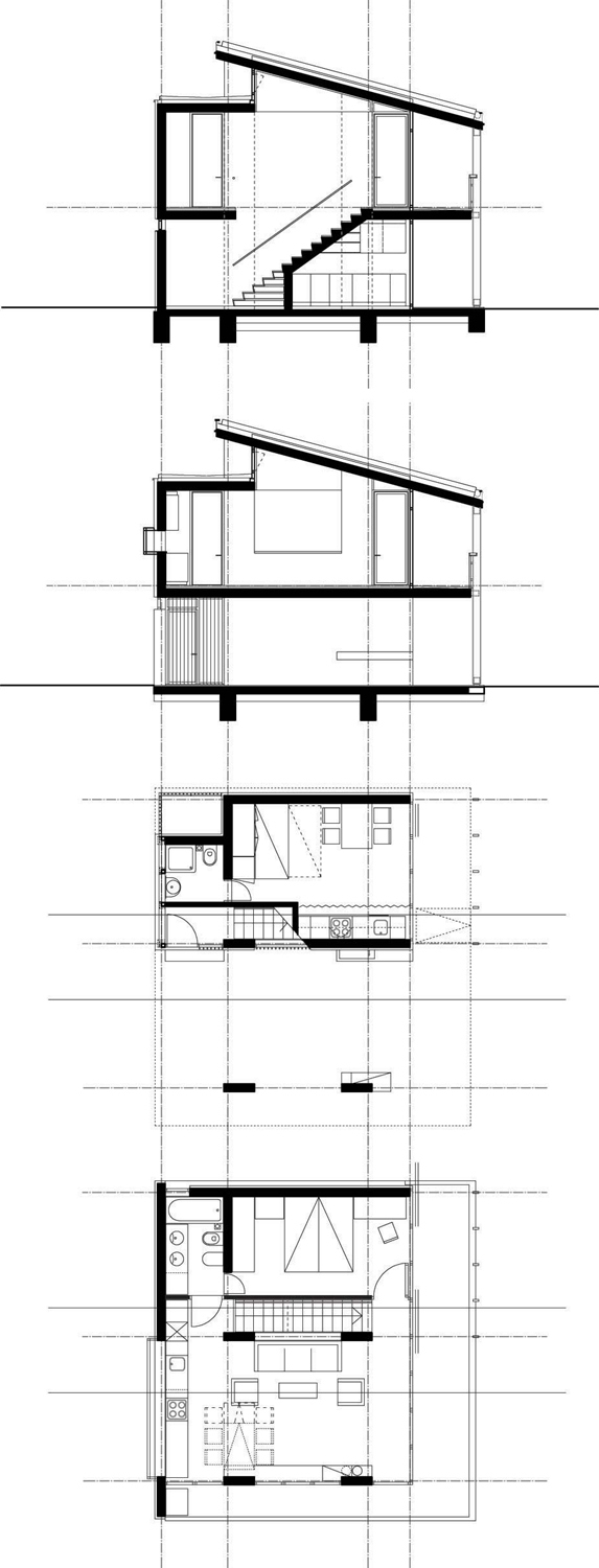
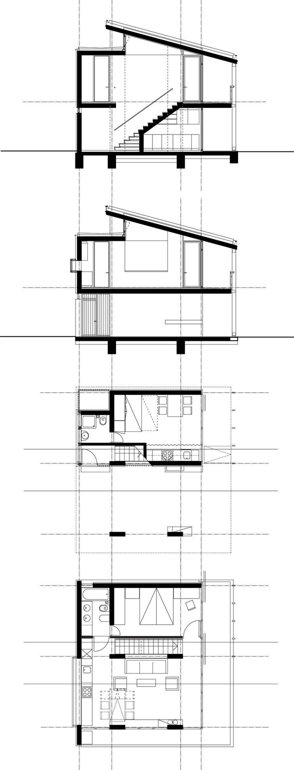
The weekend house is situated on the spot where the view upon the whole gulf of Koper could be reached only on the hight of three metres above the ground. So its main unit occupies the upper story. The big terrace represents the extension of it. There is an addition minimal guestunit on the ground floor.
Relatively large sheltered open space on the level of the garden nearby prevents also eventualy more numerous gatherings from too hot sun or sudden storm.
The envelop of the house is following the demands of the circumstances of the locus. It is closed against the strong local wind Burja and opened towards the winter lights and worm rays, and despite of broad glass surfaces protects the interior from the summer heats of the sun.
Relatively large sheltered open space on the level of the garden nearby prevents also eventualy more numerous gatherings from too hot sun or sudden storm.
The envelop of the house is following the demands of the circumstances of the locus. It is closed against the strong local wind Burja and opened towards the winter lights and worm rays, and despite of broad glass surfaces protects the interior from the summer heats of the sun.
Für den Beitrag verantwortlich: Architekturarchiv Slowenien
Ansprechpartner:in für diese Seite: nextroom








