nextroom.at

Details

Adresse
Adamičeva 15, Grosuplje, Slowenien
Mitarbeit Architektur studio abiro
Tina Kobe, Nataša Slokar
Bauherrschaft
Obcina Grosuplje
Tragwerksplanung
Antone Berce
Fotografie
Miran Kambič
Weitere Konsulent:innen
Bauleitung: GPG, Grosuplje, Peter Žeželj
Innenarchitektur: Nena Gabrovec, Kaja Lipnik Vehovar, Arne Vehovar
HLS-Planung: Nevenka Škrabe
Lichtplanung: Miha Klopcic (Arcadia, Ljubljana)
ELT: Tomi Križaj
Funktion
Bildung
Planung
2004
Fertigstellung
2007
Nutzfläche
1.800 m²
Umbauter Raum
8.900 m³
Baukosten
1,5 Mio EUR

Ausführende Firmen

Fassaden, Verglasung: AluFinal, Krško, www.alufinal-sp.si
Elektroarbeiten: EPG, Grosuplje
Installationen: Instalacije Grosuplje d.d., www.instalacije-grosuplje.si
Mobiliar: Astra Oprema, Ljubljana

Preise und Auszeichnungen

2007 Plecnik-Preis

Publikationen

db deutsche bauzeitung, Slowenien und Kroatien, Konradin Medien GmbH, Leinfelden-Echterdingen 2008.
Matevž Celik: New Architecture in Slovenia, SpringerWienNewYork, Wien 2007.
A10, new European architecture #15, A10 Media BV, Amsterdam 2007.

Presseschau

3. Januar 2008 Mateja Medvedic
deutsche bauzeitung

Einheit trotz Vielfalt

Die Bücherei des kleinen, südöstlich von Ljubljana gelegenen Ortes war lange Zeit in einem ehemaligen herrschaftlichen Haus untergebracht. Der wachsende Raumbedarf führte zur Erweiterung um einen signalhaften Funktionsbau, der mit Elementen des disparaten Umfeldes spielt und dabei der Ortsmitte wie auch dem altehrwürdigen Gebäude neue Wertigkeit zukommen lässt.

Slowenien ist in den letzten Jahren reicher geworden an einigen ausgezeichneten Beispielen zeitgenössischer Architektur, die von der Regierung oder den Kommunen mitfinanziert wurden. Bei vorgeschriebenen Wettbewerben wird die Jury im Allgemeinen vom Verband der Architekten und Raumplaner bestimmt. Dies war jedoch bei der Sanierung und Erweiterung der Stadtbibliothek in Grosuplje durch Miloš Florijancic und Matej Blenkuš, den Gründern des Architekturbüros A.Biro, nicht der Fall. Das Preisgericht wurde vom ehrgeizigen Bürgermeister von Grosuplje selbst ernannt. Trotzdem fiel das Ergebnis überaus positiv aus. Nach diesem und anderen Beispielen zeitgenössischer Architektur in Slowenien zu urteilen, lässt sich kaum mehr sagen, die öffentlichen Auftraggeber seien untätig, eher das Gegenteil ist der Fall.

Wie bei allen mit Geldern der öffentlichen Hand errichteten Gebäuden war auch der Bau der Bücherei stark durch Vorschriften eingeschränkt, die den Architekten wenig bis keinen gestalterischen Spielraum ließen. Aber dieser Nachteil wirkt sich nicht bei allen Auftraggebern gleich aus und hängt vom Ausmaß ihres Engagements, ihrem Interesse am Bauen und vom Gebäudetyp ab. Der für Grosuplje ausgewählte Entwurf entsprach den strengen funktionalen Forderungen heutiger Bibliotheksregeln, bot aber auch erstklassige Architektur innerhalb eines maßvollen Kostenrahmens von 1500 Euro pro Quadratmeter. Auch der Druck der verschiedenen Auftraggeber – Stadtverwaltung und Regierungsbehörden – auf den Zeitablauf vom Wettbewerb bis zur Eröffnungsfeier war ungewöhnlich groß. Die Bücherei von Grosuplje wurde in einer Rekordzeit von zweieinhalb Jahren fertiggestellt, während die durchschnittliche Bauzeit für Projekte der öffentlichen Hand vier bis sechs Jahre beträgt. Das berüchtigteste solcher Bauvorhaben ist die Staatsbibliothek in Ljubljana, mit deren Bau nach einem Wettbewerb aus dem Jahre 1989 jetzt vermutlich in diesem Jahr begonnen wird!
Die Bedeutung, die die Bauherren ihrem neuen Gebäude beimessen, lässt sich an der gut gestalteten Werbebroschüre der Bibliothek von Grosuplje ablesen, in welcher der Bürgermeister schreibt: »Die Entscheidung für diese außergewöhnliche Lösung, die moderne mit traditioneller Architektur verbindet, war mutig und im bestehenden, aber noch nicht weit entwickelten städtischen Kontext von Grosuplje sehr innovativ und provozierend. Heute kann ich sagen, dass wir erfolgreich waren, weil die neue Bücherei einen maßgeblichen Beitrag zur Architektur im Zentrum von Grosuplje verkörpert und eine visuelle Auffrischung der Stadtmitte bedeutet.« Damit hat er in jeder Beziehung Recht.

Bezugnahme und Abgrenzung zugleich

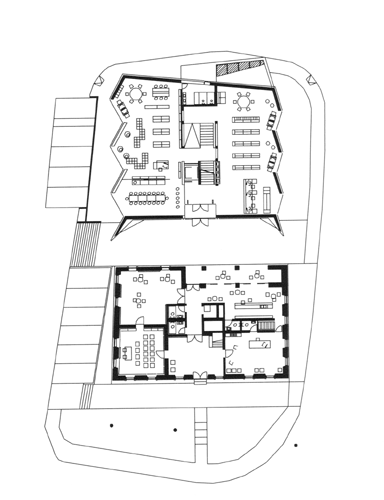
Das kleine Grundstück hinter dem Altbau von 1889, dem einzigen denkmalgeschützten Gebäude der Stadt, umgeben von gesichtslosen sozialistischen Wohnblocks der sechziger Jahre und mit Blick auf die geneigten Dächer von Einfamilienhäusern weiter hinten, kann kaum als Traumlage bezeichnet werden. Da die Architekten von A.Biro eine respektvolle Haltung gegenüber dem bestehenden Kontext vertreten, sahen sie ihre Aufgabe darin, der vorgefundenen Vielfalt gerecht zu werden und zugleich entgegenzuwirken, eine Verbindung zur Planlosigkeit der städtischen Situation herzustellen und sich zugleich von ihr zu distanzieren. Die im Zickzack gefaltete Betonschale bot dafür viele Spielarten. Der Bau ist als selbstständiges Volumen konzipiert, das der historischen Bibliothek den ihr gebührenden Respekt zollt, mit der er nur durch eine verglaste Brücke verbunden ist. Blickt man von der Hauptstraße auf den Neubau, scheinen die einheitlichen Glasflächen mit dem Hintergrund aus den sechziger Jahren zu verschmelzen und stellen zugleich das Innere zur Schau.
Die Schale wirkt auf der den Wohnblocks zugewandten Rückseite kompakt und sichert deren Bewohnern ihre Privatsphäre. Das Farbsystem in Rot und Beige entspricht den Farben und Materialien des Altbaus. Das gefaltete Dach nimmt die Form der Satteldächer von der benachbarten Bebauung auf.

Die Wettbewerbsausschreibung forderte für das Innere des neuen Gebäudes offene Räume, um dem Bibliothekspersonal die Aufsicht zu erleichtern. Die Mehrzahl der Bücher und sonstigen Medien sollte auf für die Besucher zugänglichen Regalen untergebracht werden. Besonders zu berücksichtigen waren junge Leser. Die Lösung für diese unterschiedlichen Forderungen lag in einer genau überlegten Organisation der Raumfolge. Der Eingang im Erdgeschoss mit dem geschäftigen Schalterbereich ist optisch mit den tiefer liegenden, abgestuften Ebenen der Kinderabteilung verbunden. Über der stark strukturierten Betondecke der Halle im Erdgeschoss sind die wichtigsten Funktionen der Bibliothek angeordnet. Hier wurde der Raum vertikal in zwei Bereiche geteilt: Der große, zweigeschossige Lesesaal liegt an der Ostseite, während die Westseite dicht gestapelte, mit Bücherregalen angefüllte Ebenen enthält. Das verbindende Element zwischen der ausgedehnten Leere des Lesesaals und der Dichte des Buchbestands bildet ein liebevoll gestaltetes Treppenhaus mit zusätzlichen Podesten, die als weitere intime Lesebereiche dienen. Die Materialien und Details sind schlicht und minimalistisch, natürliche Belichtung wird maximal genutzt.
Der gewaltige Raum des Lesesaals wirkt luxuriös und ausschweifend. Doch in Verbindung mit der Wärme des Fußbodens und der Möblierung aus Eiche, den neutralen, weiß verputzten Wänden und den groben Sichtbetondecken entsteht auch ein flüchtiges Spiel zwischen Respekt einflößender Monumentalität und spielerischer Heiterkeit. Anstelle der normalerweise in Arbeitsräumen herrschenden Grabesstille lebt der Raum hier von den Geräuschen der Menschen, die ihn als städtischen Wohnraum nutzen.

21. Mai 2007 Maja Vardjan
A10

Public library

A.biro’s response to the mixed context of Grosuplje is an equally heterogeneous building.

Grosuplje, a settlement only 20 minutes’ drive from Ljubljana, is an odd mixture of buildings and people. It is the home town of the current rightist prime minister, and while it is known as a Mecca for craftsmen its outskirts host both the cheap and kitschy Kongo Casino and gypsy shanty towns. A scattering of strange sculptures and a distinctive local dialect distinguish Grosuplje from your typical Slovenian town. There is a vaguely defined centre and a few irredeemably provincial luxury villas, but the overall impression is one of almost surreal diversity. It was precisely this heterogeneity that was the starting point for the design of Grosuplje Public Library.
The open competition for the building was won by A.biro, an architectural office whose built works range from a highly visible parking garage in the centre of Ljubljana to somewhat quieter but still quite experimental apartment buildings on the outskirts of the city.

The new public library is in fact an extension to the existing library which is one of the last remaining good-quality 19th-century buildings in Grosuplje and as such treated as an extremely valuable piece of architecture. The building underwent extensive but respectful renovation and modernization, since the architects’ focus was on the new structure, which is only loosely connected to the old building.
The site is typical for Grosuplje: an empty, relatively small plot between the old, listed building and anonymous 1960s blocks of social housing. The architects decided to „mirror“ the volume of the old building and gently re-shape it into an appropriate structure. The specific shape of the building conforms to some extent to the functional requirements, while simultaneously offering different kinds of symbolic readings. The central function of the library is visible on the outside as the building „opens up“ towards the main street like a book. The building zigzags in a casual but unsustained nod to the iconic. Despite the connection with the old building, the new volume stands as an independent structure in the chaotic urban fabric. The vertical alternations of glazed and closed surfaces – glazed towards the old building and closed towards the apartment blocks – make it look filigreed yet solid. While from the rear the addition seems like a closed box, from the main street is seems transparent, thereby leaving the dominant role to the old building.

The interior of the new library reveals a very complex „urban scheme“. The library is structured as an introverted public landscape composed of different platforms, voids, routes and stairways. Great importance was given to the way the public enters the building. The whole library opens up gradually: the entrance hall’s expressive exposed concrete ceiling reveals nothing of the vast central space that unfolds on the higher floors. The full-height central reading room has a great spatiality, in contrast to other sections which are filled with bookshelves. The choice of finishing materials and furniture gives the space a distinct character that is as heterogeneous as the urban context – tranquillity, cosiness and monumentality are all here. Another focal point for the architects was the lighting – one of the most important features of a library. The building „catches“ dispersed natural light through the skylights on the zigzagging roof, as well as from vast glazed facade sections. At night balloon-shaped suspended lights, hanging above the central reading room, softly glow like moons, inviting passers-by to enter.

Grosuplje’s new public library is not just a centre of documentation and information; it is also important as a social centre and an „urban intensifier“. An open platform between the two buildings, beneath the bridge at first-floor level, acts as a covered public square, a small plaza hosting different activities including a café. And despite the striking contrasts, the complex works as a whole, making it an inspiring example of a different kind of heterogeneity.

Karte