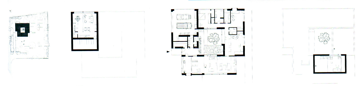
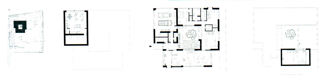
Bauwerk
Family house in Rusovce
Maroš Fečík - Bratislava (SK) - 2006
Adresse: Bratislava Rusovce, Slowakei
Architektur: Maroš Fečík
Funktion: Einfamilienhaus
Planung: 2003 - 2006
Ausführung: 2004 - 2006
Publikationen
TOPOLČANSKÁ, Mária: Dom v autorskej krajine. ARCH XII, 2007, č. 1. s. 16- 17.
Ansprechpartner:in für die Projektdaten: nextroom







