Bauwerk
Elementary School and Sports Hall
Tamás Getto - Pellérd (H) - 2007
25. Mai 2010 - Architekturarchiv Ungarn
The last five years in the history of Pellérd can be a good example for everyone, I think. The leaders of the village and the mayor, József Metzing have long-range plans. Seven years ago they have prepared a regulation concept that has shown up the conditions of a future village center. Later, they asked our office to make a study-plan of this center. As a result of this long lasting planning process Pellérd and its center now possesses a well prepared future development plan. They have already built a bank, the town hall, and the new school with the sports hall. They organize the constructions of the new kindergarten and the communal sport grounds. Everything goes on according to plan, step by step.
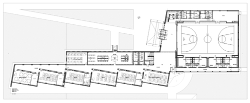
This building has two wings: the sports hall and the school. They are connected with an entrance hall, the main entrance is assigned by a symbolic gate which is remarkable from the main square.
In the beginning we planned the entrance hall in bigger dimensions than we decided to save some place and re-created the space by opening the side of the sports hall toward the entrance with window surfaces and sliding doors. The multifunctional hall is the biggest common space of the village so it has to suit these requirements. We made more toilets for the communal use with a disabled one. There’s a sliding plank to protect the hall's special floor and a mobile stage with segments that can be also used as ball tables. The changing rooms are designed with clean-path system, so from them one can go straight to the sports hall.
The classrooms are on the Southern side, connected with a long corridor – but it is dissected as we moved the six blocks of the classes like saw teeth. In these extra space-corners children can hide from supervisor eyes. Every child has his own locker. Almost every classroom has its own teacher’s room to keep all accessory of teaching and where teachers can take a little brake in silence during the rush of the day.
We attached the library to the school wing which functions as a communal library as well, so we opened two entrances – one for the school and one for the village.
We used durable materials everywhere to minimize maintenance. On the facades we used hand laid brick and cement-plates. The roof was covered with aluminium plates. In the inside terracotta cover protects the walls in level with the plaster. The floor was made of long-lasting quality stone – to be polished through the forthcoming decades. (architect's text)
This building has two wings: the sports hall and the school. They are connected with an entrance hall, the main entrance is assigned by a symbolic gate which is remarkable from the main square.
In the beginning we planned the entrance hall in bigger dimensions than we decided to save some place and re-created the space by opening the side of the sports hall toward the entrance with window surfaces and sliding doors. The multifunctional hall is the biggest common space of the village so it has to suit these requirements. We made more toilets for the communal use with a disabled one. There’s a sliding plank to protect the hall's special floor and a mobile stage with segments that can be also used as ball tables. The changing rooms are designed with clean-path system, so from them one can go straight to the sports hall.
The classrooms are on the Southern side, connected with a long corridor – but it is dissected as we moved the six blocks of the classes like saw teeth. In these extra space-corners children can hide from supervisor eyes. Every child has his own locker. Almost every classroom has its own teacher’s room to keep all accessory of teaching and where teachers can take a little brake in silence during the rush of the day.
We attached the library to the school wing which functions as a communal library as well, so we opened two entrances – one for the school and one for the village.
We used durable materials everywhere to minimize maintenance. On the facades we used hand laid brick and cement-plates. The roof was covered with aluminium plates. In the inside terracotta cover protects the walls in level with the plaster. The floor was made of long-lasting quality stone – to be polished through the forthcoming decades. (architect's text)
Für den Beitrag verantwortlich: Architekturarchiv Ungarn
Ansprechpartner:in für diese Seite: nextroom








