Bauwerk
Three Towers residential complex
Peter Moravčík, Martin Wolf - Bratislava (SK) - 2009
7. Mai 2010 - Architekturarchiv Slowakei
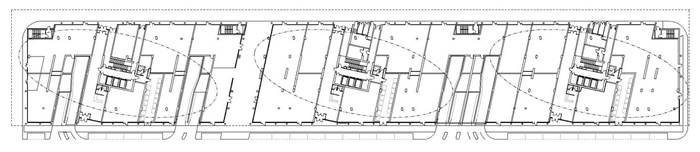
At the beginning of the 21st century, there were plans for quite a few high-rise buildings to be built in the capital city of Bratislava. While some remained on paper, several others have been realized, thus substantially altering the city’s silhouette. Among them is this trio of cylindrical towers, which have visually added to the existing group of high-rise buildings situated around the city’s main ring road. The functional and operational layout of Three Towers is based on the successful model of the American residential skyscraper. The ground floor houses business facilities and restaurants, providing the towers with a city-like parterre. Above it, there is a three-storey car park, with a green roof that provides resting areas for the residents. The towers themselves grow out of this compact foot. Each of them is topped off with two-storey apartments providing exceptional views of the city. Soňa Ščepánová
Für den Beitrag verantwortlich: Architekturarchiv Slowakei
Ansprechpartner:in für diese Seite: nextroom








