Bauwerk
Duna Tower Einganshalle
skyline architekten - Budapest (H) - 2006
18. Mai 2011 - Architekturarchiv Ungarn
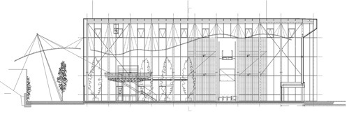
Aufgabe war der Entwurf einer repräsentativen Eingangshalle als Identifikationsmerkmal mit hohem Erlebniswert für das minimalistische Bürohochhaus am Stadtrand von Budapest und die Ausführungs- und Detailplanung für das Gesamtprojekt Duna Tower. Die Eingangshalle wurde als eigenständiger, voll verglaster Baukörper zwischen die 60 m hohen Büroriegel geschoben., und nimmt deren kubische Formensprache auf.
Die Differenzierung der Baukörper zeigt sich auch in unterschiedlichen Fassadensystemen:
• Büroturmverglasung (17.000 m²) als kostengünstige Elementfassade mit Deckschalen
• Eingangshalle (1.400 m²) als Akzent mit Vario-Verglasung ohne Deckschalen
• Stirnfassade der Eingangshalle als Nurglasfassade mit hängenden Glasschwertern als Windaussteifung für höchste Transparenz und Offenheit.
Die Empfangsgeste des konischen Portals wird durch die Nurglaskonstruktion oberhalb der Eingangstrommel zusätzlich betont. Der Grünton der Eingangshallen-Verglasung unterstreicht den Wintergarteneffekt und unterscheidet sich bewusst von der neutralen, blau-grauen Bürohausfassade.
In der Innenraumgestaltung finden sich verschiedene Elemente als Referenz an den Gebäudenamen und nahen Fluss, welcher aber aus der Halle nicht gesehen werden kann (Duna- ungarisch: Donau). Die abgehängte Aluwelle mit den Zusatzfunktionen Sonnenschutz , Reflektor für die Effektbeleuchtung und Schallzerstreuung. Der grüne Natursteinboden und die in der Halle schwebende, schiffsartige Clubinsel mit Café-Betrieb. Der Grünton der Verglasung unterscheidet sich von der neutralen Bürohausfassade. Der hintere Teil dient auch als Wintergarten für das hauseigene Restaurant. Die fahrbare Putzbrücke oberhalb der Welle kann bei Events auch zu Beleuchterzwecken eingesetzt werden. Die dynamisch veränderliche Farbmischung der Effektbeleuchtung ermöglicht abwechslungsreiche Raumstimmungen. (Text des Architekten)
Die Differenzierung der Baukörper zeigt sich auch in unterschiedlichen Fassadensystemen:
• Büroturmverglasung (17.000 m²) als kostengünstige Elementfassade mit Deckschalen
• Eingangshalle (1.400 m²) als Akzent mit Vario-Verglasung ohne Deckschalen
• Stirnfassade der Eingangshalle als Nurglasfassade mit hängenden Glasschwertern als Windaussteifung für höchste Transparenz und Offenheit.
Die Empfangsgeste des konischen Portals wird durch die Nurglaskonstruktion oberhalb der Eingangstrommel zusätzlich betont. Der Grünton der Eingangshallen-Verglasung unterstreicht den Wintergarteneffekt und unterscheidet sich bewusst von der neutralen, blau-grauen Bürohausfassade.
In der Innenraumgestaltung finden sich verschiedene Elemente als Referenz an den Gebäudenamen und nahen Fluss, welcher aber aus der Halle nicht gesehen werden kann (Duna- ungarisch: Donau). Die abgehängte Aluwelle mit den Zusatzfunktionen Sonnenschutz , Reflektor für die Effektbeleuchtung und Schallzerstreuung. Der grüne Natursteinboden und die in der Halle schwebende, schiffsartige Clubinsel mit Café-Betrieb. Der Grünton der Verglasung unterscheidet sich von der neutralen Bürohausfassade. Der hintere Teil dient auch als Wintergarten für das hauseigene Restaurant. Die fahrbare Putzbrücke oberhalb der Welle kann bei Events auch zu Beleuchterzwecken eingesetzt werden. Die dynamisch veränderliche Farbmischung der Effektbeleuchtung ermöglicht abwechslungsreiche Raumstimmungen. (Text des Architekten)
Für den Beitrag verantwortlich: Architekturarchiv Ungarn
Ansprechpartner:in für diese Seite: nextroom
Akteure
ArchitekturBauherrschaft
Real4You Commerzimmobilien GmbH
Tragwerksplanung










