Bauwerk
House XXS at Krakovo
Dekleva Gregorič arhitekti - Ljubljana (SLO) - 2004
12. Februar 2006 - Architekturarchiv Slowenien
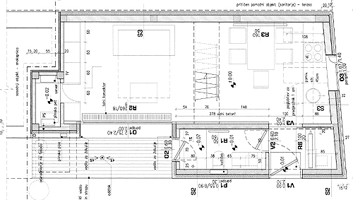
The XXS (Extra-Extra-Small) house is located in Krakovo, a medieval fishing village which today forms a part of the Ljubljana town centre. The area is protected, so the basic dimensions of the volume were already prescribed. This is the holiday home of a couple who live in the countryside. The architects had to organise all of the functions on a very limited surface. Because the house faces north, lighting posed an additional problem, which was solved by the architects with light-shafts on the roof, reflecting the light all the way down to the ground floor. The roof and the main facade are designed in a uniform material.
Für den Beitrag verantwortlich: Architekturarchiv Slowenien
Ansprechpartner:in für diese Seite: nextroom
Akteure
ArchitekturBauherrschaft
Marko Dekleva
Tragwerksplanung








