Bauwerk
Faculty of Mathematics in Ljubljana
Bevk Perović arhitekti - Ljubljana (SLO) - 2006
14. November 2006 - Architekturarchiv Slowenien
Bevk Perović arhitekti – Faculty of Mathematics in Ljubljana
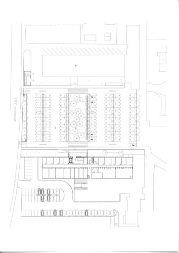
At first sight the whole story seems illogical, but it is true that the new Faculty of Mathematic Building is built on top of a privately owned computer company building, currently under reconstruction by another architect. The plot along Jadranska Street in Ljubljana was reserved for two faculty buildings, but in 1968 they built only the Faculty of Physics, while of the mathematical building only the foundations were made before the money ran out. Instead they built a building that hosted the central Slovenian computer system. In the times of political and economic changes the centre was privatised and became a private computer company. When the money for the new building for the Faculty of Mathematics finally came, it was logical that the new building would be built on their own land, not to mention the foundations. This decision brought some problems with it. First, they had to solve the construction that had to protrude through two lover floors, second problem is that the faculty has no hall on the ground floor, as would be normal, as the ground floor belongs to the other company. There is only enough space for the stairs and elevators and visitors have to reach the third floor where the faculty really starts. In this floor there are two large halls in front of two large lecture rooms. In the fourth floor there are normal lecture rooms along the central corridor, the public spaces – two halls are situated in the end corners of the building. In the fifth floor there are cabinets for professors with small reception rooms in the middle of the two parallel corridors, where professors can meet with their students. The teacher’s staff room with a cafeteria act as public space on this floor. The last floor is devoted to offices and there is still enough space for three terraces. The money was, as always in such cases, limited and for the interior the architects used simple and clear solutions. The only part where architects could show their ambition is the façade itself. As the terraces are covered with steel frames the whole volume of the building is a clear rectangular box where only the sun protection screens an South façade and fire escape stairs on the back façade are added. The rest is glass façade, treated in three ways. The parts in front of public spaces are covered with clear glass, the rest is glass printed with vertical stripes. Some glass is in front of windows the rest covers the façade. In this way the unique volume of the building is treated in different ways, making different effects during the day and night. The printed glass also diminishes its transparency and takes away some of the reflex so typical for glass facades. The lower part of the building is a story of its own, and the new façade covers it only in the entrance part thus marking it. The connection with the old Faculty of Physics building is marked with a small park with trees leading across the parking space from which is divided by a long bench and a roof of bicycle stand. Both elements accent the connection between buildings who are, among other things, similar in shape and dimension.
Andrej Hrausky
At first sight the whole story seems illogical, but it is true that the new Faculty of Mathematic Building is built on top of a privately owned computer company building, currently under reconstruction by another architect. The plot along Jadranska Street in Ljubljana was reserved for two faculty buildings, but in 1968 they built only the Faculty of Physics, while of the mathematical building only the foundations were made before the money ran out. Instead they built a building that hosted the central Slovenian computer system. In the times of political and economic changes the centre was privatised and became a private computer company. When the money for the new building for the Faculty of Mathematics finally came, it was logical that the new building would be built on their own land, not to mention the foundations. This decision brought some problems with it. First, they had to solve the construction that had to protrude through two lover floors, second problem is that the faculty has no hall on the ground floor, as would be normal, as the ground floor belongs to the other company. There is only enough space for the stairs and elevators and visitors have to reach the third floor where the faculty really starts. In this floor there are two large halls in front of two large lecture rooms. In the fourth floor there are normal lecture rooms along the central corridor, the public spaces – two halls are situated in the end corners of the building. In the fifth floor there are cabinets for professors with small reception rooms in the middle of the two parallel corridors, where professors can meet with their students. The teacher’s staff room with a cafeteria act as public space on this floor. The last floor is devoted to offices and there is still enough space for three terraces. The money was, as always in such cases, limited and for the interior the architects used simple and clear solutions. The only part where architects could show their ambition is the façade itself. As the terraces are covered with steel frames the whole volume of the building is a clear rectangular box where only the sun protection screens an South façade and fire escape stairs on the back façade are added. The rest is glass façade, treated in three ways. The parts in front of public spaces are covered with clear glass, the rest is glass printed with vertical stripes. Some glass is in front of windows the rest covers the façade. In this way the unique volume of the building is treated in different ways, making different effects during the day and night. The printed glass also diminishes its transparency and takes away some of the reflex so typical for glass facades. The lower part of the building is a story of its own, and the new façade covers it only in the entrance part thus marking it. The connection with the old Faculty of Physics building is marked with a small park with trees leading across the parking space from which is divided by a long bench and a roof of bicycle stand. Both elements accent the connection between buildings who are, among other things, similar in shape and dimension.
Andrej Hrausky
Für den Beitrag verantwortlich: Architekturarchiv Slowenien
Ansprechpartner:in für diese Seite: nextroom








