Bauwerk

Audi Forum Multifunctional Hall
3H Építésziroda - Györ (H) - 2003
Audi Forum Multifunctional Hall, Foto: Gábor Máté
Audi Forum Multifunctional Hall, Foto: 3H Építésziroda
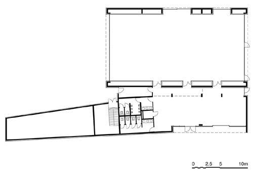
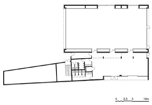
Mobility and motion was the main organizing principle of the design for the building. Sitting in a car we get to know our environment in motion, here we perceive spaces when walking round. Acceleration and slow-down are compositional factors of the building exerting its influence both inside and outside. The blocks ascending like a ramp meet when reaching a horizontal deck.As opposed to the exterior formed like a sculpture, the interior design reveals a completely different world. Here everything is destined to function, just like inside a car. Spaces are multi-functional, even though one notices almost nothing of it at first sight, as the elements in motion are hidden by the bordering walls. The design of the ceiling and the floor is also an important part of multifold utilization (conference, theatre, show). By using the sliding walls and the noiselessly moveable curtain the vast space can be divided into four and these sections may be used independently of one another. Light permeates the spaces. The hall has glazed butt sides, thus various perspectives open onto the surrounding park.

teilen auf

Für den Beitrag verantwortlich: Architekturarchiv Ungarn

Ansprechpartner:in für diese Seite: nextroomoffice[at]nextroom.at

Akteure

Architektur

Bauherrschaft
Audi Hungaria Motor Kft

Tragwerksplanung

Fotografie