Bauwerk

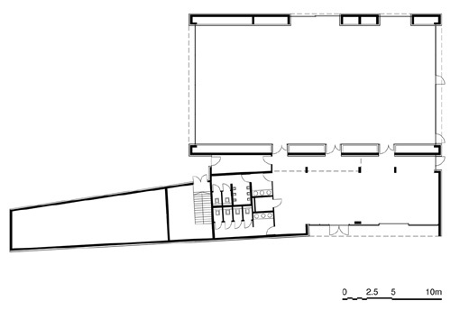
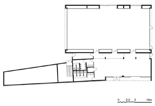
Audi Forum Multifunctional Hall
3H Építésziroda - Györ (H) - 2003
Audi Forum Multifunctional Hall, Foto: Gábor Máté
Audi Forum Multifunctional Hall, Foto: 3H Építésziroda

Adresse: Kardán u. 1., 9022 Györ, Ungarn

Architektur: 3H Építésziroda (Katalin Csillag, Zsolt Gunther)

Mitarbeit Architektur: Roberta Horváth, Krisztián Sallai, Tamás Simon, Viktor Pósa

Bauherrschaft: Audi Hungaria Motor Kft

Tragwerksplanung: BS-Tekton Mérnökiroda

Fotografie: Gábor Máté

 

Funktion: Gemischte Nutzung

 

Wettbewerb: 2002

Planung: 2002 - 2003

Fertigstellung: 2003

Eröffnung: 2003

 

Grundstücksfläche: 10.150 m²

Bruttogeschossfläche: 652 m²

Publikationen

2004 magyar hírlap 22.05.2004
2004 élet és irodalom 26.03.2004
2004 népszabadság 2004/1
2004 octogon architecture & design 2004/1
2003 atrium 2003/6

Ansprechpartner:in für die Projektdaten: nextroomoffice[at]nextroom.at

Akteure

Architektur

Bauherrschaft
Audi Hungaria Motor Kft

Tragwerksplanung

Fotografie