nextroom.at

Details

Adresse
Lastenstrasse 15, 9560 Feldkirchen in Kärnten, Österreich
Mitarbeit Architektur Ernst Roth
Christoph Isopp, Thomas Friessnegg, Roland Oman, Clemens Rainer, Hubert Stingl, Harald Weber
Bauherrschaft
Österreichisches Rotes Kreuz, Landesverband Kärnten
Tragwerksplanung
Reinhold Svetina
Fotografie
Gisela Erlacher
Wettbewerb
1997
Planung
1997 - 1998
Fertigstellung
1999

Publikationen

Otto Kapfinger: Neue Architektur in Kärnten / Nova arhitektura na Koroskem, Hrsg. Architektur Haus Kärnten, Verlag Anton Pustet, Salzburg 2005.

Karte

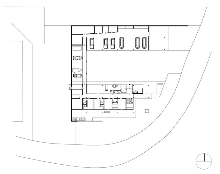
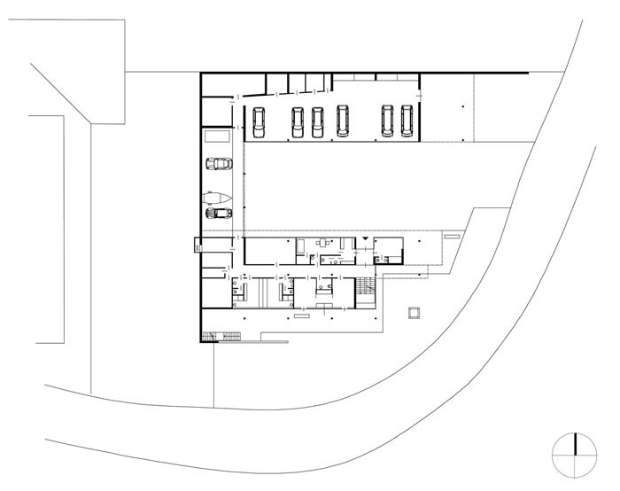
Pläne