Bauwerk

Special school for mentally disabled children
Tamás Karácsony, Minusplus Generáltervező Kft. - Csorna (H) - 2004
Special school for mentally disabled children, Foto: Gábor Máté
Special school for mentally disabled children, Foto: Gábor Máté
2. November 2008 - Architekturarchiv Ungarn
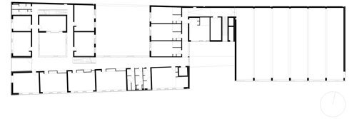
This complex made up of two buildings is the centre for mentally disabled children in North-West Hungary. The house is the larger one of two units, hosting the sports hall, the restaurant and some public functions too.
The aim was to re-accent the existing hierarchy with a meaningful yet sensual public building in this small town tissue. The inner courts of the house and the long cut that joins the two streets filter into each other creating a narrow transitory space reconstituting the typology and scale of the town.

Forming and functionality of the building can be read as a monograph of the city - and the possible activities within. The tight volume acts as it is cut out from the mass of the lot by such paths and volumes which are models of rural public spaces. The remained pass-through in the narrow site –to the trade school- gets its new identity by facing the remaining blind façade of the neighbouring house. Hereby not just the path, and its volume got it’s shape as an inter-space –one of the biggest secret and substance of villages - and got denser, but all it’s linking semi-private spaces /gallery, inner courts/ formed new urban spaces in this back yard territory.

The inner functions are organised between urban and interspaces, which –as it’s rich interiors connects the closed outer yards– creates the functional norm of the conventional rural housing, and it’s simple forms without any nostalgia. The first (smallest) atrium disposes the teachers’ room and all other administration, the second (biggest) half-unfolded yard is the children’s territory, the one in the rear-end opens to the city and public spaces, creating an inter-space between the public interior and the pass-through. The stairs, corridors and opened inner spaces between the closed functional units gives a very intensive and dense model of the basic forms of views, overviews and motion of the city. Through all this mentally disabled children gets their own „school“ of the city, a manual of spaces - which they could only use insecure and restricted otherwise. Samu Szemerey

teilen auf

Für den Beitrag verantwortlich: Architekturarchiv Ungarn

Ansprechpartner:in für diese Seite: nextroomoffice[at]nextroom.at

Akteure

Architektur

Bauherrschaft
Municipality of Győr–Moson–Sopron County

Tragwerksplanung

Fotografie