Bauwerk
Single family home renovation and expansion
Dóm Architecture Studio - Monoszló (H) - 2004
9. November 2008 - Architekturarchiv Ungarn
The site is located int he center of the town of Monoszló, Hungary, not far from the local Reform Church and the adjacent to the well-known Erdei School. It is customary in the area to build with minimal front yards, or no front yard at all, and extended eaves.
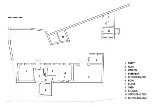
This rural, tile-roofed, stone-walled adobe house was reconstructed avoiding new functions, structures and materials, alien to the original use of the house. Newer urban patterns, appearing in the region mainly due to changing ownership, were considered as potential threats in this context.
Next to the existing reconstructed house a perpendicular extension was built on the area where ome old sheds used to stand. This extension houses the sun-room/kitchen and was designed to meet modern day standards using the most contemporary technologies, materials and construction methods. The new does not want to transform the old and did not come into existence to replace it, but rather to complete it.
Synthesis alone was not an aim of the project, because it resists both the old and the new. On the contrary, the old and the new languages are brought into harmony and co-existence by giving them each their own space and allowing them to express themselves fully, side by side. István Murka
This rural, tile-roofed, stone-walled adobe house was reconstructed avoiding new functions, structures and materials, alien to the original use of the house. Newer urban patterns, appearing in the region mainly due to changing ownership, were considered as potential threats in this context.
Next to the existing reconstructed house a perpendicular extension was built on the area where ome old sheds used to stand. This extension houses the sun-room/kitchen and was designed to meet modern day standards using the most contemporary technologies, materials and construction methods. The new does not want to transform the old and did not come into existence to replace it, but rather to complete it.
Synthesis alone was not an aim of the project, because it resists both the old and the new. On the contrary, the old and the new languages are brought into harmony and co-existence by giving them each their own space and allowing them to express themselves fully, side by side. István Murka
Für den Beitrag verantwortlich: Architekturarchiv Ungarn
Ansprechpartner:in für diese Seite: nextroom
Akteure
ArchitekturTragwerksplanung
Landschaftsarchitektur
Fotografie








