Bauwerk
BL Yachtclub and apartments
MCXVI Architects - Balatonlelle (H) - 2007
BL Yachtclub and apartments, Balatonlelle
Fair is fair
26. Oktober 2008 - Architekturarchiv Ungarn
The latest project by Attila Borsay’s team, the yacht harbour and resort park in Balatonlelle opened this summer is a fairly, moreover: excellently executed architectural task. It has been designed and realized with foresight which is rare in Hungary, even in this exclusive category of real estates. The overall organization of the complex is generous, clear and transparent. It is remarkable that the architect resisted the commonplace of an emphasized entrance doorway which may be an irresistible temptation for someone designing a luxury residential park and even more so for the client. The architectural qualities of the BL Yachtclub also praises the commissioner who did not only let the talented young designers work with pleasure, but basically defined their work via his strategic decisions. When, for example, it turned out that – owing to the discretion of the designers – the construction would cost less per square meter than they had calculated, he did not increase the density of development or the floor space, as investors tend to do nowadays, but voted for quality instead. This way a logically constructed architectural quality was produced as a result of the co-operation of the client and the designer starting from the very basic issues – because this was the only way this result could and could have been achieved.
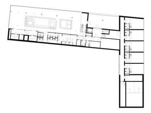
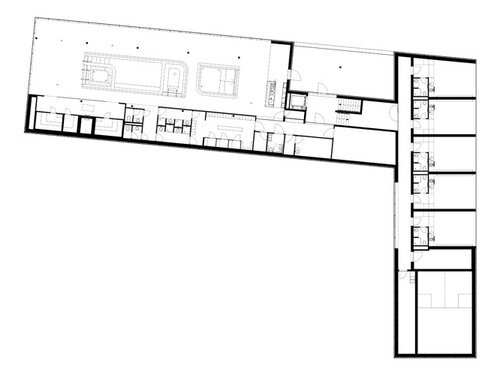
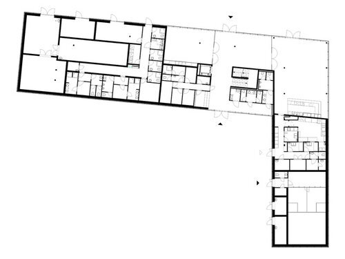
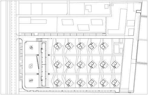
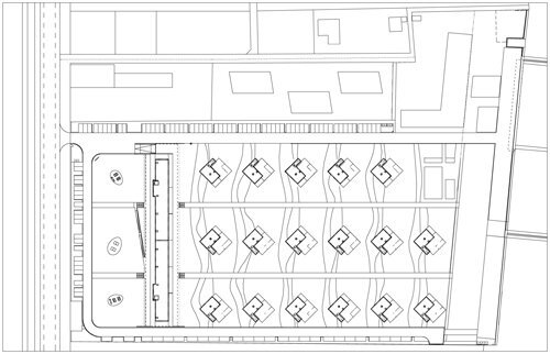
Arriving in the area the visitor is welcomed by a gorgeous park with old trees preserved on the lot, and passing by the imposing three-story main building one catches sight of the rows of villas. The apartment house and the villas include units facing exclusively the lake, which was a basic criterion phrased by the client. The main building generously separates the villas from the traffic and noise of the street and the railway. Positioned diagonally because of reasons of exposition to the sunshine, orientation and climate, the villas are elegant and well-proportioned: their homogeneous appearance and rows create order in the chaotic environment typical of each spa. To use a simile of design, the simplicity and clarity of the forms that sophisticated luxury limousines have shall never compete with those of the trendy colourful sports cars. With the overall architectural design of the estate Borsay emphasizes timelessness as well as proximity to nature. The qualities of simplicity and timelessness are also characteristics of minimalism, but this is not the case now as the aesthetic ambition has been pushed into the background here by exactness and rationality. Probably the only component expressing an explicit aesthetic intention is the finish of the pierced facades of the staircases providing motion and character in a house extremely simplified. A real hit is the tone of the colouring evoking Pompeian red which is just enough to generously reduce the overall eventual monotony that the houses of identical design may produce. I must also mention the elegant, reserved and cozy interior design preferring natural materials on the whole. Here in the interiors one may actually get in touch with the very high standards of the execution and detailing which is characteristic of the built-in furniture, the mountings, the openings, the materials and the whole estate as such. It is enough to refer to the application of the ceiling heating-cooling system which is rare yet in Hungary, but also regarded an innovation in Europe.
The road flanking the row of villas takes us to the harbour building on the shore the fashionable glass-box architecture of which seems to slightly contradict the principle phrased previously as a „non-aesthetical view”. The house including the restaurant, the club room, the bath with a pool, the squash-court and the guests’ rooms also reveals clarity, rationality and hardness in the best sense.
Here, arriving at the harbour building it occurs to me: what I miss from the fine and exemplary design is an architectural character going beyond the task and I am expecting a more powerful presence of Borsay’s abilities of creative formation next time. If the harbour could be made out from afar it would also distinguish the exclusive resort park from the mass of the weekend houses flanking the shores of Lake Balaton. Only a tiny grain of pepper is to be put into this pot to make the flavour of the excellently made dish unforgettable. Miklós Sulyok
Arriving in the area the visitor is welcomed by a gorgeous park with old trees preserved on the lot, and passing by the imposing three-story main building one catches sight of the rows of villas. The apartment house and the villas include units facing exclusively the lake, which was a basic criterion phrased by the client. The main building generously separates the villas from the traffic and noise of the street and the railway. Positioned diagonally because of reasons of exposition to the sunshine, orientation and climate, the villas are elegant and well-proportioned: their homogeneous appearance and rows create order in the chaotic environment typical of each spa. To use a simile of design, the simplicity and clarity of the forms that sophisticated luxury limousines have shall never compete with those of the trendy colourful sports cars. With the overall architectural design of the estate Borsay emphasizes timelessness as well as proximity to nature. The qualities of simplicity and timelessness are also characteristics of minimalism, but this is not the case now as the aesthetic ambition has been pushed into the background here by exactness and rationality. Probably the only component expressing an explicit aesthetic intention is the finish of the pierced facades of the staircases providing motion and character in a house extremely simplified. A real hit is the tone of the colouring evoking Pompeian red which is just enough to generously reduce the overall eventual monotony that the houses of identical design may produce. I must also mention the elegant, reserved and cozy interior design preferring natural materials on the whole. Here in the interiors one may actually get in touch with the very high standards of the execution and detailing which is characteristic of the built-in furniture, the mountings, the openings, the materials and the whole estate as such. It is enough to refer to the application of the ceiling heating-cooling system which is rare yet in Hungary, but also regarded an innovation in Europe.
The road flanking the row of villas takes us to the harbour building on the shore the fashionable glass-box architecture of which seems to slightly contradict the principle phrased previously as a „non-aesthetical view”. The house including the restaurant, the club room, the bath with a pool, the squash-court and the guests’ rooms also reveals clarity, rationality and hardness in the best sense.
Here, arriving at the harbour building it occurs to me: what I miss from the fine and exemplary design is an architectural character going beyond the task and I am expecting a more powerful presence of Borsay’s abilities of creative formation next time. If the harbour could be made out from afar it would also distinguish the exclusive resort park from the mass of the weekend houses flanking the shores of Lake Balaton. Only a tiny grain of pepper is to be put into this pot to make the flavour of the excellently made dish unforgettable. Miklós Sulyok
Für den Beitrag verantwortlich: Architekturarchiv Ungarn
Ansprechpartner:in für diese Seite: nextroom
Akteure
ArchitekturTragwerksplanung
Landschaftsarchitektur








