nextroom.at

Details

Adresse
Keleti Károly u. 37., 1021 Budapest, Ungarn
Bauherrschaft
Municipality of II. district, Budapest
Landschaftsarchitektur
Garten Kft (István Steffler)
Funktion
Bildung
Wettbewerb
2002
Planung
2003 - 2004
Ausführung
2004 - 2005
Eröffnung
2005
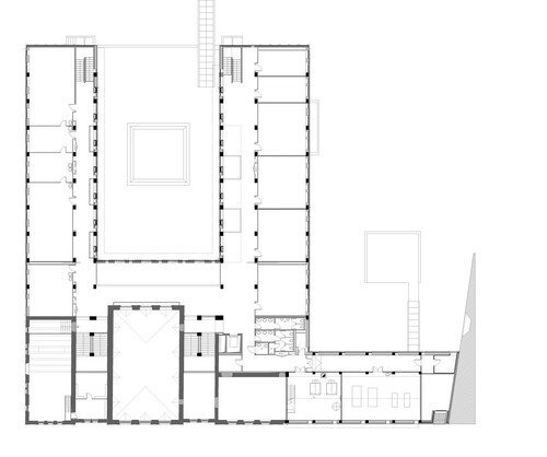
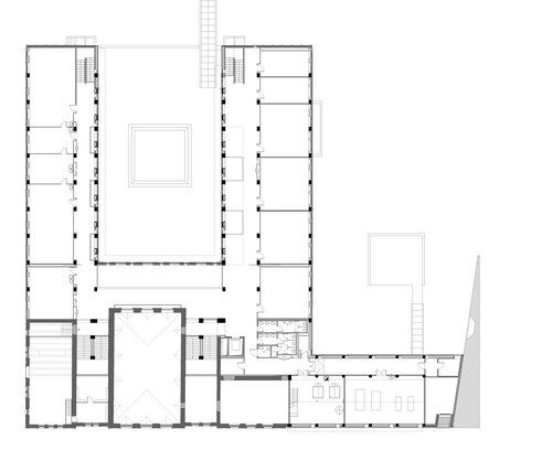
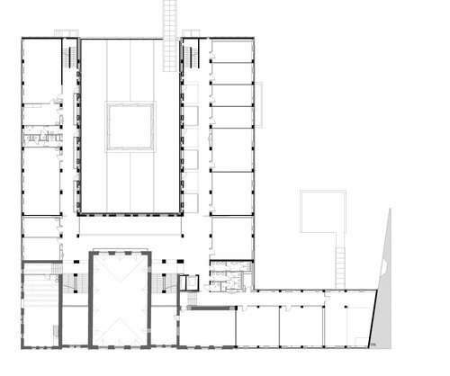
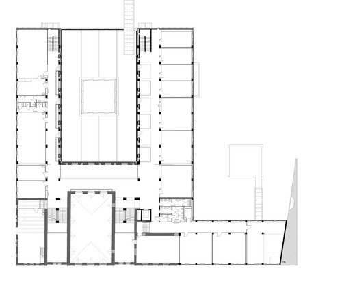
Grundstücksfläche
8.397 m²
Bruttogeschossfläche
8.881 m²
Nutzfläche
7.587 m²
Baukosten
5,5 Mio EUR

Preise und Auszeichnungen

Budapest Architecture Award of Excellence Certificate 2006
Media Architecture Award 2006

Publikationen

Magyar Építőművészet 2006/2 pp.8-15

Karte