Bildungsluft
TROX Austria + CEE GmbHKomplettlösungen für die ideale Lernumgebung aus einer Hand.
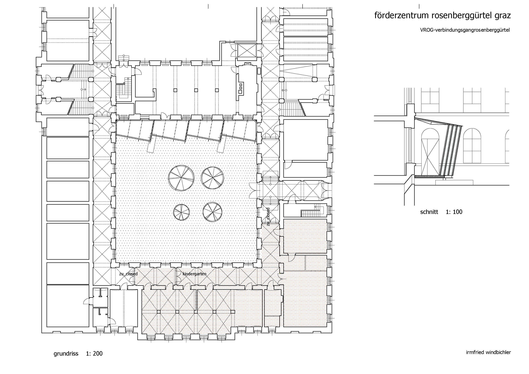
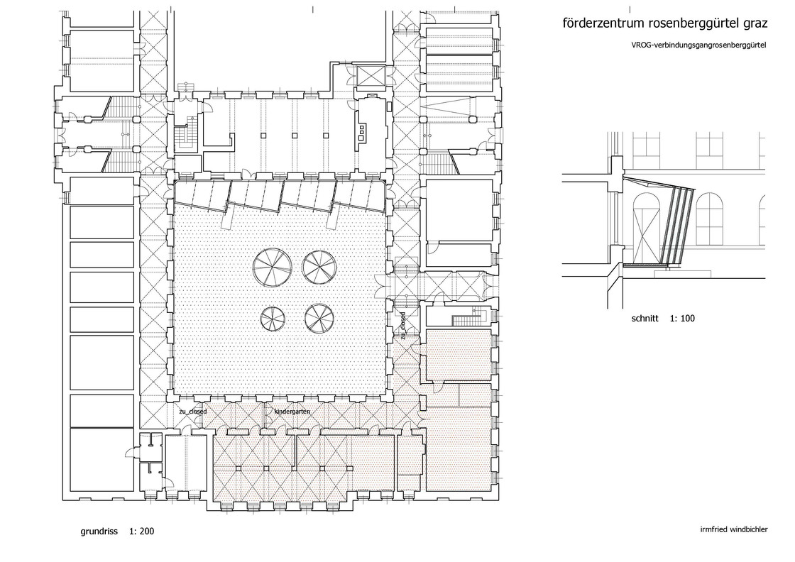
Zum ProduktDie folgenden Produkte und Materialien wurden im Projekt VROG - Förderzentrum des Landes Steiermark eingesetzt. Informationen sowie News über Produkte und Hersteller finden sie unter nextproducts.at.
Komplettlösungen für die ideale Lernumgebung aus einer Hand.
Zum ProduktBei den nextroom Produkten handelt es sich um eine entgeltliche Einschaltung der DOCUmedia.at GmbH. Die Produktplattform nextproducts.at wurde in Kooperation mit nextroom entwickelt. Die Produktrecherche erfolgt durch die DOCUmedia.at GmbH. Bei Fragen bezüglich der Produktdarstellung, wenden sie sich an office@nextroom.at.