Bauwerk
Praxis in Großrußbach
Thomas Abendroth - Großrußbach (A) - 2012
30. Oktober 2016 - newroom
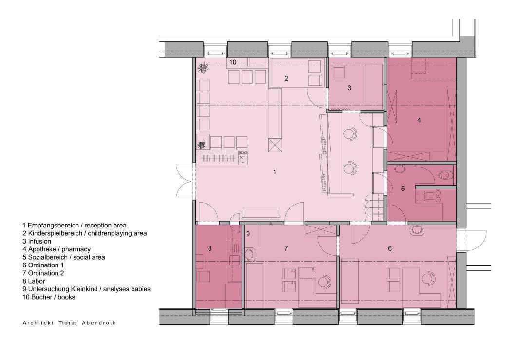
Im Dachgeschoß des Gemeindezentrums von Großrußbach im Weinviertel wurde im Herbst 2012 die Praxis der Allgemeinärztin Dr. Hazilampru-Schreiber in den ehemaligen Räumlichkeiten des Gemeindeamtes eingerichtet. Um trotz der räumlichen Gegebenheiten eine gut funktionierende Ordinationsstruktur realisieren zu können, wurde die ganze Fachkenntnis der Architekten gefordert. Kurze Wege für das Personal, Übersichtlichkeit im Warteraum und ein ausgewogenes Raumgefüge galt es herzustellen. Die Raumatmosphäre vermittelt Klarheit und durch den Einsatz von hellen Holztönen wirken die Räume einladend und freundlich. Für das Farbkonzept ist Dipl. Ing. Pia Anna Buxbaum (spezialisiert auf wissenschaftlich basierte Farbkonzepte) verantwortlich. Ihre Gestaltung mit feinen Farbnuancen schafft Wohlfühlräume und unterstützt die wartenden Patienten beim entspannen. Nur durch die richtige Beleuchtung kommt das Farb- und Materialkonzept der Praxis zum klingen. Viel indirektes Licht bezieht den ganzen Raum mit ein und lässt die Dachräumlichkeiten luftiger wirken. Die LED-Leuchte über der Vitrine wechselt die Lichtfarbe ganz langsam um Eintönigkeit in der Lichtstimmung zu vermeiden. Materialien, Farben und Licht sind aufeinander abgestimmt und wirken in der Zusammenschau ganzheitlich. (Text: Architekt)
Für den Beitrag verantwortlich: newroom
Ansprechpartner:in für diese Seite: nextroom
Akteure
ArchitekturBauherrschaft
Karin Hazilampru-Schreiber
Fotografie








