Bauwerk
Nebesa mountain retreat
REAL Engineering d.o.o. - Kobarid (SLO) - 2004
12. Februar 2006 - Architekturarchiv Slowenien
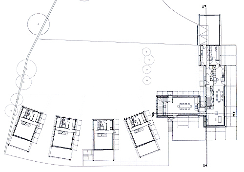
As always when building in a protected zone, the architect had to deal with the regulations on how local architecture should look. Its present form was defined in the past by technological limitations, but these traditional forms are now frozen for the future. The tourist resort Livek, however, proves that with a little inventive spirit one can adopt a creative approach to solving the problems of protected areas. The cluster of huts is, in fact, misleading. The entire surface they stand on is hollowed out, intended for additional rooms and a swimming pool, opening towards the surroundings on the edge of this artificial plateau. The architectural language is pure, clear and schematic. Today’s middle class want to enjoy contemporary design even when on a holiday! 
Für den Beitrag verantwortlich: Architekturarchiv Slowenien
Ansprechpartner:in für diese Seite: nextroom









