Bauwerk
Stadtbibliothek Grosuplje
studio abiro - Grosuplje (SLO) - 2004
Town library, Grosuplje, Slovenia
14. Juni 2007 - Architekturarchiv Slowenien
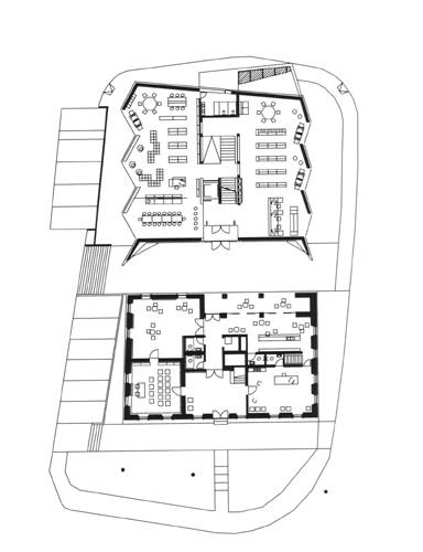
Grosuplje is a small provincial town that underwent intensive urban development in a short period of time. The library that occupied an old farm building on the main road had to be enlarged. The building, now protected by law, was long lost among the large housing blocks that were built around it. The architects had to preserve the old building and find a solution for the addition that would find a dialog with the surroundings. The new addition is therefore higher and with its strong architectural language tries to establish a proper background for the old building. The architects presented a solution that respects the old, without copying its elements. The library is now organised in the new addition, the old building houses a gallery, the information centre and a meeting hall.
Für den Beitrag verantwortlich: Architekturarchiv Slowenien
Ansprechpartner:in für diese Seite: nextroom
Presseschau
Akteure
ArchitekturBauherrschaft
Obcina Grosuplje
Tragwerksplanung
Fotografie








