Bauwerk
Wohnhaus in Trondheim
Brendeland & Kristoffersen - Trondheim (N) - 2005

Punk Architektur in massivem Holz
»To start with, I‘ll tell you what I think Punk isn‘t – it isn‘t a fashion, a passing phase of knee-jerk rebellion against your parents, the latest ‘cool‘ trend or even a particular form of style or music; it simply is an idea that guides and motivates your life. And what is this idea? Think for yourself, be yourself, don‘t just take what society gives you, create your own rules, live your own life.«
Don Letts
18. Dezember 2005 - Karin Triendl
Im Fall von Brendeland&Kristoffersen ist das Resultat jener Überzeugung ein Wohnprojekt, das traditionelle Methoden der Gebäudeplanung, -finanzierung, und -konstruktion in Frage stellt.
Aus einer Kombination modernster Holzkonstruktionstechniken und urbaner Entwicklungskonzepte entstand ein Vorzeigeprojekt in einem von der Alternativszene besetzten Stadtviertel Trondheims.
Die ehemaligen Hausbesetzer wünschten sich bezahlbaren Wohnraum, der den Charakter des alten Arbeiterviertels bewahrt. Die Stadtverwaltung machte Finanzen frei, gab Mitspracherecht und entschärfte damit einen sozialen Brennpunkt. Nach Jahren des Kampfes zogen Politiker und Bewohner von Svartlamon aus einem Interessenkonflikt gleichermaßen Gewinn. Man hörte einander zu und verhandelte. Um die weitere bauliche Entwicklung von Svartlamon zu sichern und das Gebiet vor einem »Ausverkauf« seitens der Stadtväter zu bewahren, wurde bald ein Entwicklungsplan festgelegt. Eines der Schlüsselprojekte war der Wettbewerb für ein gemeinschaftliches Wohnhaus, der von BKArk im Jahre 2001 gewonnen wurde.
Schon in der Wettbewerbsausschreibung wurden der innovative Umgang mit Holz und maximale Dichte gefordert. Das bedeutete für die Architekten nicht nur möglichst viele Geschosse, sondern auch die Verwendung von Massivholz aufgrund seiner brandschutztechnischen und tragenden Eigenschaften. (Bis zu diesem Zeitpunkt gab es noch kein fünfgeschossiges Massivholzgebäude in Norwegen.)
BKArk überzeugten nicht nur mit höchster entwerferischer Qualität und progressiver Gebäudetechnik, sie bewiesen auch, dass ein derartiges Projekt mit niedrigen Kosten durchsetzbar ist. Damit bilden sie einen starken Gegentrend zur bisherigen Strategie der Stadtväter, den Wohnbau dem freien Markt zu überlassen. Nachdem der Wettbewerb gewonnen war, konnten die beiden jungen Architekten sofort das Vertrauen der zukünftigen Bewohner gewinnen. Mit der notwendigen Sensibilität für den Bestand und das soziale Gefüge wurde so ein Ensemble aus zwei Gebäuden mit jeweils unterschiedlichen Qualitäten und differenziertem Raumangebot entwickelt.
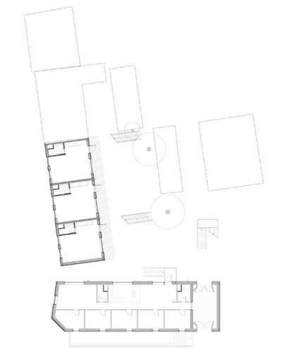
Das entlang der Straße platzierte Hauptgebäude besteht aus einem gemeinschaftlich genutzten Erdgeschoss und vier Wohngeschossen mit je 120 m². Das kleinere Volumen nimmt Bezug auf den Bestand und schließt das Ganze zu einem geschützten Hof. Jede der sechs Einzelwohnungen mit großzügiger Terrasse blickt auf den damit definierten Freiraum.
In letzter Zeit verschwinden rund um das neue Gebäude die Zäune – statt dessen tauchen Hängematten, Sandkisten und spielende Kinder auf. Die Strategie der Gemeinsamkeit scheint also zu funktionieren!
Das sehr einfache Raumkonzept des Hauptgebäudes erlaubt maximale Flexibilität auf allen Ebenen.
Jedes Geschoss verfügt über einen langgezogenen Gemeinschaftsraum und vier bis fünf kleine Schlafzimmer. Durch die Kombination diverser Funktionen wie z.B. Wohnen, Küche und Gangflächen oder die Nutzung der Stiege als Balkon, konnte die Anzahl der Quadratmeter pro Person auf 20 verringert werden. Zum Vergleich: der norwegische Standard liegt bei 50!
Dem zugrunde liegt die Überzeugung der Architekten, dass sich jede intelligente Entscheidung über die Raumaufteilung auf Baukosten, Energieverbrauch und schließlich auch die Miete positiv auswirkt.
Das daraus entstandene Organisationsschema ermöglicht zudem individuelle Lösungen für verschiedenste Arten des gemeinschaftlichen Wohnens: So wohnen zum Beispiel im zweiten Stock zwei Frauen mit drei Kindern, im fünften Geschoss haben sich fünf Studenten eingerichtet. Die gesamte Konstruktion wurde aus Holzbauelementen der österreichischen Firma Santner gefertigt und außen mit norwegischem Lärchenholz verkleidet. Innenwände und Böden lassen die unbehandelte Holzoberfläche der tragenden Elemente sichtbar.
Extreme Raumhöhen und Fenstergrößen machten neue Standards notwendig. Eine großartige Leistung, wenn man bedenkt, dass im geförderten Wohnbau das erlaubte Minimum oft auch schon das gebaute Maximum ist. Im Gegensatz zur allgemeinen Praxis, ein Projekt auf die Glanzseiten der Architekturmagazine abzustimmen, wurde das »Finish« ganz und gar den zukünftigen BewohnerInnen überlassen, die damit die gebaute »Basis« auf individuelle Weise interpretieren.
BKArk haben es geschafft, ein sehr zeitgenössisches Stadthaus zu errichten, das die Notwendigkeit sozialer und ökologischer Verantwortlichkeit nicht ignoriert. Das Ergebnis: ein markanter Entwurf eines hölzernen Hochhauses, der Aspekte von Alternativkultur, Punkgeist, experimenteller Architektur und nationaler Forstpolitik integriert. Der zunächst unlösbare politische Konflikt zwischen Hausbesetzern und Gemeindeverwaltung ist schlussendlich in einem einzigartigen, kostengünstigen und ökologischen Wohnungsbauprojekt aufgegangen.
Aus einer Kombination modernster Holzkonstruktionstechniken und urbaner Entwicklungskonzepte entstand ein Vorzeigeprojekt in einem von der Alternativszene besetzten Stadtviertel Trondheims.
Die ehemaligen Hausbesetzer wünschten sich bezahlbaren Wohnraum, der den Charakter des alten Arbeiterviertels bewahrt. Die Stadtverwaltung machte Finanzen frei, gab Mitspracherecht und entschärfte damit einen sozialen Brennpunkt. Nach Jahren des Kampfes zogen Politiker und Bewohner von Svartlamon aus einem Interessenkonflikt gleichermaßen Gewinn. Man hörte einander zu und verhandelte. Um die weitere bauliche Entwicklung von Svartlamon zu sichern und das Gebiet vor einem »Ausverkauf« seitens der Stadtväter zu bewahren, wurde bald ein Entwicklungsplan festgelegt. Eines der Schlüsselprojekte war der Wettbewerb für ein gemeinschaftliches Wohnhaus, der von BKArk im Jahre 2001 gewonnen wurde.
Schon in der Wettbewerbsausschreibung wurden der innovative Umgang mit Holz und maximale Dichte gefordert. Das bedeutete für die Architekten nicht nur möglichst viele Geschosse, sondern auch die Verwendung von Massivholz aufgrund seiner brandschutztechnischen und tragenden Eigenschaften. (Bis zu diesem Zeitpunkt gab es noch kein fünfgeschossiges Massivholzgebäude in Norwegen.)
BKArk überzeugten nicht nur mit höchster entwerferischer Qualität und progressiver Gebäudetechnik, sie bewiesen auch, dass ein derartiges Projekt mit niedrigen Kosten durchsetzbar ist. Damit bilden sie einen starken Gegentrend zur bisherigen Strategie der Stadtväter, den Wohnbau dem freien Markt zu überlassen. Nachdem der Wettbewerb gewonnen war, konnten die beiden jungen Architekten sofort das Vertrauen der zukünftigen Bewohner gewinnen. Mit der notwendigen Sensibilität für den Bestand und das soziale Gefüge wurde so ein Ensemble aus zwei Gebäuden mit jeweils unterschiedlichen Qualitäten und differenziertem Raumangebot entwickelt.
Das entlang der Straße platzierte Hauptgebäude besteht aus einem gemeinschaftlich genutzten Erdgeschoss und vier Wohngeschossen mit je 120 m². Das kleinere Volumen nimmt Bezug auf den Bestand und schließt das Ganze zu einem geschützten Hof. Jede der sechs Einzelwohnungen mit großzügiger Terrasse blickt auf den damit definierten Freiraum.
In letzter Zeit verschwinden rund um das neue Gebäude die Zäune – statt dessen tauchen Hängematten, Sandkisten und spielende Kinder auf. Die Strategie der Gemeinsamkeit scheint also zu funktionieren!
Das sehr einfache Raumkonzept des Hauptgebäudes erlaubt maximale Flexibilität auf allen Ebenen.
Jedes Geschoss verfügt über einen langgezogenen Gemeinschaftsraum und vier bis fünf kleine Schlafzimmer. Durch die Kombination diverser Funktionen wie z.B. Wohnen, Küche und Gangflächen oder die Nutzung der Stiege als Balkon, konnte die Anzahl der Quadratmeter pro Person auf 20 verringert werden. Zum Vergleich: der norwegische Standard liegt bei 50!
Dem zugrunde liegt die Überzeugung der Architekten, dass sich jede intelligente Entscheidung über die Raumaufteilung auf Baukosten, Energieverbrauch und schließlich auch die Miete positiv auswirkt.
Das daraus entstandene Organisationsschema ermöglicht zudem individuelle Lösungen für verschiedenste Arten des gemeinschaftlichen Wohnens: So wohnen zum Beispiel im zweiten Stock zwei Frauen mit drei Kindern, im fünften Geschoss haben sich fünf Studenten eingerichtet. Die gesamte Konstruktion wurde aus Holzbauelementen der österreichischen Firma Santner gefertigt und außen mit norwegischem Lärchenholz verkleidet. Innenwände und Böden lassen die unbehandelte Holzoberfläche der tragenden Elemente sichtbar.
Extreme Raumhöhen und Fenstergrößen machten neue Standards notwendig. Eine großartige Leistung, wenn man bedenkt, dass im geförderten Wohnbau das erlaubte Minimum oft auch schon das gebaute Maximum ist. Im Gegensatz zur allgemeinen Praxis, ein Projekt auf die Glanzseiten der Architekturmagazine abzustimmen, wurde das »Finish« ganz und gar den zukünftigen BewohnerInnen überlassen, die damit die gebaute »Basis« auf individuelle Weise interpretieren.
BKArk haben es geschafft, ein sehr zeitgenössisches Stadthaus zu errichten, das die Notwendigkeit sozialer und ökologischer Verantwortlichkeit nicht ignoriert. Das Ergebnis: ein markanter Entwurf eines hölzernen Hochhauses, der Aspekte von Alternativkultur, Punkgeist, experimenteller Architektur und nationaler Forstpolitik integriert. Der zunächst unlösbare politische Konflikt zwischen Hausbesetzern und Gemeindeverwaltung ist schlussendlich in einem einzigartigen, kostengünstigen und ökologischen Wohnungsbauprojekt aufgegangen.
Für den Beitrag verantwortlich: zuschnitt
Ansprechpartner:in für diese Seite: Kurt Zweifel








