Bauwerk
Grammar School
Zadravec arhitekti d.o.o. - Ptuj (SLO) - 2002
19. Februar 2006 - Architekturarchiv Slowenien
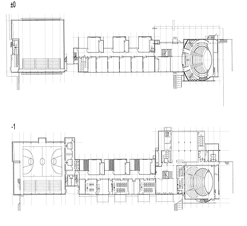
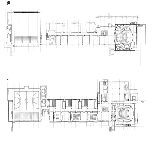
The new grammar school complex connects with the existing school centre, being located behind it on the banks of a spring. On this relatively unfavourable, narrow, inclined terrain, the architect designed a building starting with a multipurpose hall, continuing with a wing of classrooms and ending with a gymnasium. Each building is treated in accordance with its contents, which is also reflected by the facades. The facade of the multipurpose hall is clad with copper plates, the classrooms are marked by balconies, while the gymnasium is covered by wooden brise-soleils. On the side of the building with vehicle access, the architect took advantage of the inclined terrain by giving the buildings an additional storey partly below ground level. The classroom wing is particularly imaginative, with the classrooms on one side of the linking corridor being positioned longitudinally, while on the other side, the side facing the hill, they are placed transversely to the corridor. This allowed for a patio, giving light to the classrooms located in the basement, and to the corridors on the upper storeys. 
Für den Beitrag verantwortlich: Architekturarchiv Slowenien
Ansprechpartner:in für diese Seite: nextroom













