Bauwerk
Wohnhausanlage Schenkendorfgasse
Patricia Zacek-Stadler - Wien (A) - 2006
24. September 2006 - Az W
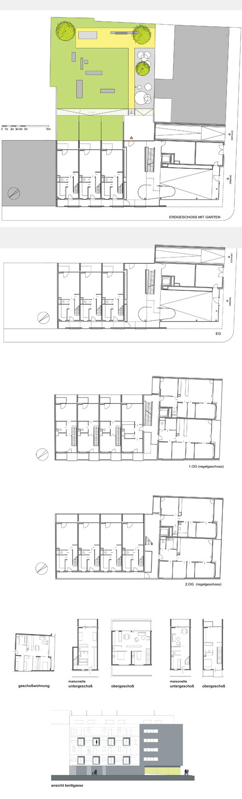
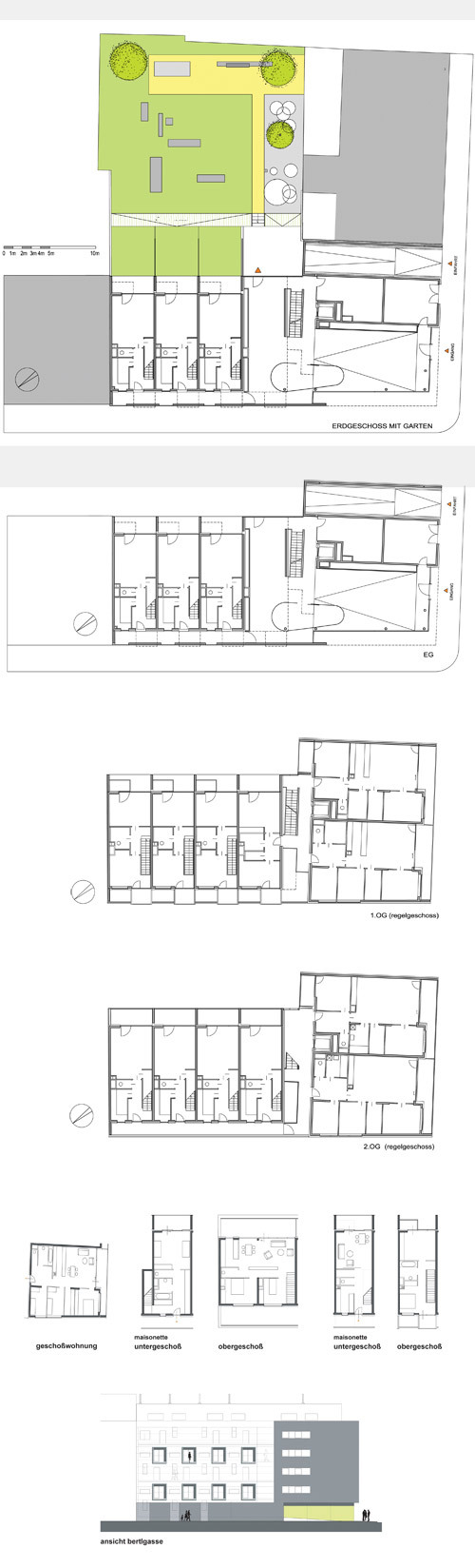
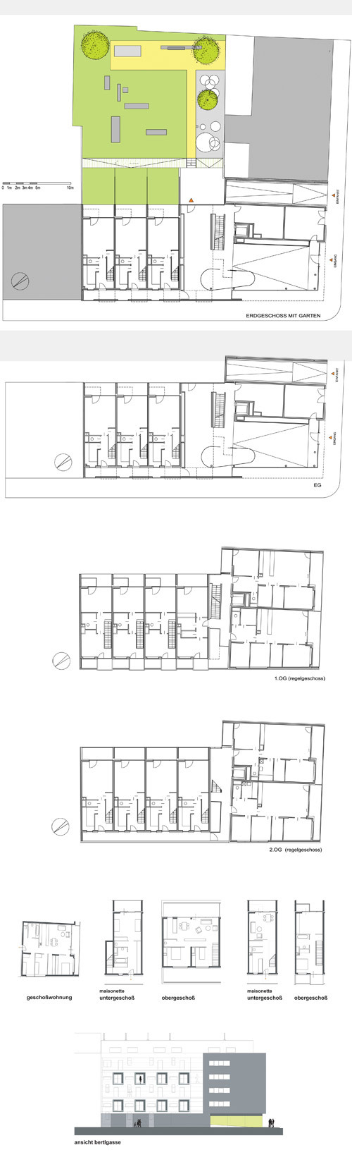
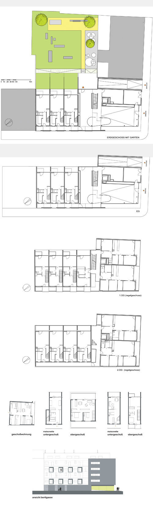
Das Eckgrundstück Schenkendorfgasse / Bertlgasse liegt in einem typischen, heterogen bebauten Wiener Rasterviertel im 21. Bezirk. Die Bebauungsstruktur zeichnet sich vorwiegend durch Wohnbauten aus, obwohl die Widmung auch Kleingewerbe und Geschäftszonen ermöglicht. Auf dem Bauplatz wurde ein Gebäudetypus errchtet, der sich aus zwei nahezu gleichgroßen Kuben zusammensetzt, die sich jeweils zur Sonnenseite hin orientieren und über ein Laubengangtreppenhaus verbunden und erschlossen werden.
Untergebracht sind zwanzig Wohnungen. An der Bertlgasse sind es Maisonetten, an der Schenkendorfgasse Geschosswohnungen bis ins Dachgeschoss. Der Eingang des Gebäudes erfolgt über die Schenkendorfgasse. Man betritt ein großzügig verglastes Foyer in dem sich die Zugänge zum Gartenhof, zum Fahrradraum und drei Wohnungen befinden. Von der Straße aus gelangt man über eine Rampe ins Foyer. Dadurch ist die Wohnebene der drei Erdgeschoss-Maisonetten vom umgebenden Gelände etwas erhöht. Diese Wohnungen haben neben Loggien auch Gartenterrassen.
Die zweigeschossigen Wohnungen besitzen neben großzügigen Loggien mit darüber liegenden zugehörigen Balkonen an der Gartenseite auch Loggienboxen an der Straßenseite. Diese Boxen ragen über die Verkleidung des Laubengangs hinaus, sie sind sozusagen durchgesteckt und bieten den Schlafzimmern direkte Belüftung und Belichtung und einen kleinen Freiraum. Die äußere Hülle des Laubengangs - eine transparente geschuppte Glashülle - dient einerseits als Witterungsschutz, bietet damit andererseits einen offenen Innenraum, der großzügigen Ausblick zur Strasse gewährt und damit auch bestimmendes Fassadenelement ist. Im Gebäudeteil der Schenkendorfgasse sind Geschosswohnungen mit großen südseitigen Loggien untergebracht. An dieser Seite ist das bestimmende Fassadenmaterial Metall. Das Material zieht sich im Brüstungsbereich als Hülle weiter, mit gläsernen Einschnitten. Es entsteht damit eine Fassadenschichtung von innerer Loggienverglasung über die Fassadenelemente bis zu den Brüstungselementen. Diese Schichtung ist auch Thema beim Laubengang und an der Hoffassade.
Zum Gesamtkonzept gehört der begrünte Gartenhof. Ein mehr als hundert Quadratmeter großer Erdkörper ermöglicht Baumpflanzungen. Ansonsten bestimmt ein Rasenfeld mit großen liegenden Steinplatten das Ambiente, von dem sich der Kinderspielbereich und ein Gartenweg abheben. Die Erdgeschosswohnungen haben kleine vorgelagerte Gartenterrassen. Sie sind zum übrigen Gartenhof leicht erhöht, und nur durch eine begrünte Böschung getrennt, sodass eine natürliche Grenze zwischen Privatheit und Öffentlichkeit entsteht. (Text: Architektin)
Untergebracht sind zwanzig Wohnungen. An der Bertlgasse sind es Maisonetten, an der Schenkendorfgasse Geschosswohnungen bis ins Dachgeschoss. Der Eingang des Gebäudes erfolgt über die Schenkendorfgasse. Man betritt ein großzügig verglastes Foyer in dem sich die Zugänge zum Gartenhof, zum Fahrradraum und drei Wohnungen befinden. Von der Straße aus gelangt man über eine Rampe ins Foyer. Dadurch ist die Wohnebene der drei Erdgeschoss-Maisonetten vom umgebenden Gelände etwas erhöht. Diese Wohnungen haben neben Loggien auch Gartenterrassen.
Die zweigeschossigen Wohnungen besitzen neben großzügigen Loggien mit darüber liegenden zugehörigen Balkonen an der Gartenseite auch Loggienboxen an der Straßenseite. Diese Boxen ragen über die Verkleidung des Laubengangs hinaus, sie sind sozusagen durchgesteckt und bieten den Schlafzimmern direkte Belüftung und Belichtung und einen kleinen Freiraum. Die äußere Hülle des Laubengangs - eine transparente geschuppte Glashülle - dient einerseits als Witterungsschutz, bietet damit andererseits einen offenen Innenraum, der großzügigen Ausblick zur Strasse gewährt und damit auch bestimmendes Fassadenelement ist. Im Gebäudeteil der Schenkendorfgasse sind Geschosswohnungen mit großen südseitigen Loggien untergebracht. An dieser Seite ist das bestimmende Fassadenmaterial Metall. Das Material zieht sich im Brüstungsbereich als Hülle weiter, mit gläsernen Einschnitten. Es entsteht damit eine Fassadenschichtung von innerer Loggienverglasung über die Fassadenelemente bis zu den Brüstungselementen. Diese Schichtung ist auch Thema beim Laubengang und an der Hoffassade.
Zum Gesamtkonzept gehört der begrünte Gartenhof. Ein mehr als hundert Quadratmeter großer Erdkörper ermöglicht Baumpflanzungen. Ansonsten bestimmt ein Rasenfeld mit großen liegenden Steinplatten das Ambiente, von dem sich der Kinderspielbereich und ein Gartenweg abheben. Die Erdgeschosswohnungen haben kleine vorgelagerte Gartenterrassen. Sie sind zum übrigen Gartenhof leicht erhöht, und nur durch eine begrünte Böschung getrennt, sodass eine natürliche Grenze zwischen Privatheit und Öffentlichkeit entsteht. (Text: Architektin)
Für den Beitrag verantwortlich: Architekturzentrum Wien
Ansprechpartner:in für diese Seite: Maria Welzig
Presseschau
Akteure
ArchitekturBauherrschaft
Tragwerksplanung
Fotografie









